转载至CAD小苗新浪博客
CAD软件提供了一个虚拟的二维和三维空间,这个空间需要一个基准,这个基准被称为世界坐标系(WCS),但在有些特殊情况下,世界坐标系下绘图并不是特别方便,因此用户会根据自己的需要设置一个新的参考坐标系,这个坐标系就叫用户坐标系(User Coordinate System),简称为UCS。在CAD中输入UCS命令,就可以根据不同的条件设置用户坐标系,通常有下面几种方式:设置新的坐标原点,旋转某个轴向,以某个对象为基准设置坐标系,以三维模型的某个面来定义UCS方便后续建模。
下面简单给大家介绍几种应用。
一、调整坐标原点,方便进行坐标标注。
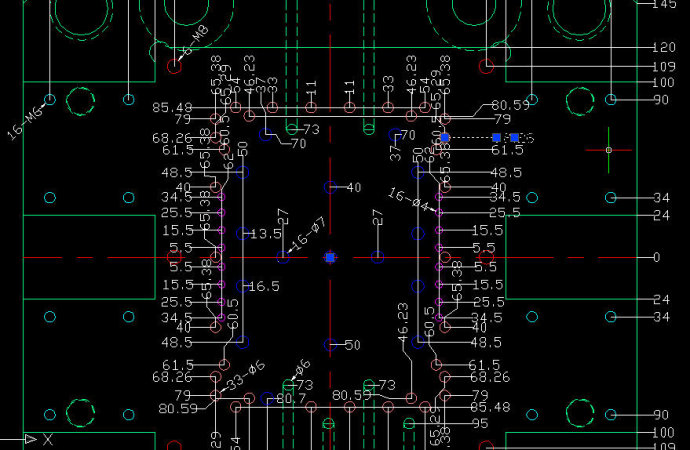
在一些机械零件、模具中有大量的孔或其他图形特征,设计人员通常的做法是在图形中确定一个基点,将UCS原点调整到基点处,然后利用坐标标注来进行尺寸标注。如果结合连续标注,标注非常快,而且图面也很整齐,如下图所示:
在上图中可以看到UCS坐标原点被定为到中心线的交点处,当然也可以将图形整体移动,让中心线的交点正好位于世界坐标系的原点,但如果一图纸中有多个零件图形就只能用UCS了。
二、调整坐标方向,方便绘制倾斜图纸。
一些小区和市政规划图是倾斜的,如下图所示。
如果就保持在倾斜转状态下绘图或出图都不方便,因此通常会将坐标系进行旋转,将图形转成正向。基本操作方法如下:
1、输入UCS命令,回车。
2、输入Z选项,输入需要旋转的角度,将UCS沿Z周旋转一定角度。
当角度不明确时,可以输入E(对象)选项,然后选择上或下边框线。
3、输入PLAN命令,回车,将视图切换为UCS的平面视图,如下图所示:
小提示:在CAD中当调整UCS时可以让视图自动调整为UCS的平面视图,可以输入UCSFOLLOW命令,然后将值设置为1。
三、将坐标系定位到模型的某个表面,方便后续建模
三维建模时经常需要频繁切换视图和切换UCS,要学好三维建模,就必须先了解如何使用UCS。
假设我们要在一个方体的侧面上画一个圆柱,我们就需要将UCS定义到方体的侧面上,操作非常简单,输入UCS命令,回车,输入F (面) 选项,然后在图中选择方体的一个侧面,如下图所示:
CAD会提示一些调整选项,例如N选项可以将UCS定位到相邻的面上,X\Y选项可以调整XY轴的方向。
将UCS定位到方体侧面后,就可以直接在方体的侧面绘制其他图形了,如下图所示:
AutoCAD高版本三维功能有所增强,提供了动态UCS功能,可以自动将UCS定位到光标所指的面上,这样避免了频繁切换UCS。不过现在浩辰CAD等这些国产CAD暂时还不支持。
UCS还有很多其他选项,可以分别适用不同的需求,而且当选择不同对象时,UCS的原点和方向也不尽相同,关于这些细节此处就不再详细讲解了,大家可以参看CAD的帮助去了解更多信息。







杭州格原